0
Skip to Content
portfolio
stock plans
about
contact us
Open Menu
Close Menu
portfolio
stock plans
about
contact us
Open Menu
Close Menu
portfolio
stock plans
about
contact us
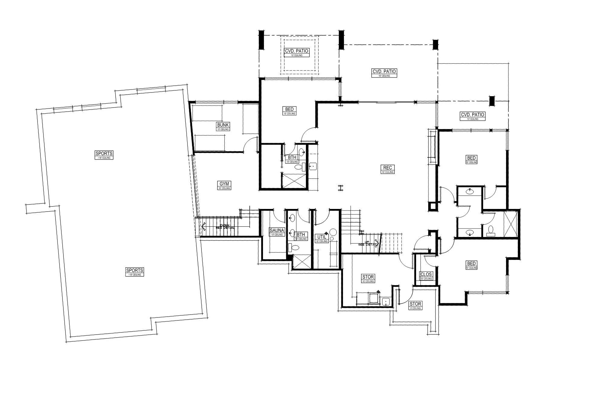
la sal peak
heber city, ut
Previous
Previous
skyline
Next
Next
lindsay springs